Geopark Muskauer Faltenbogen
Eingeladener Wettbewerb – 1. Preis

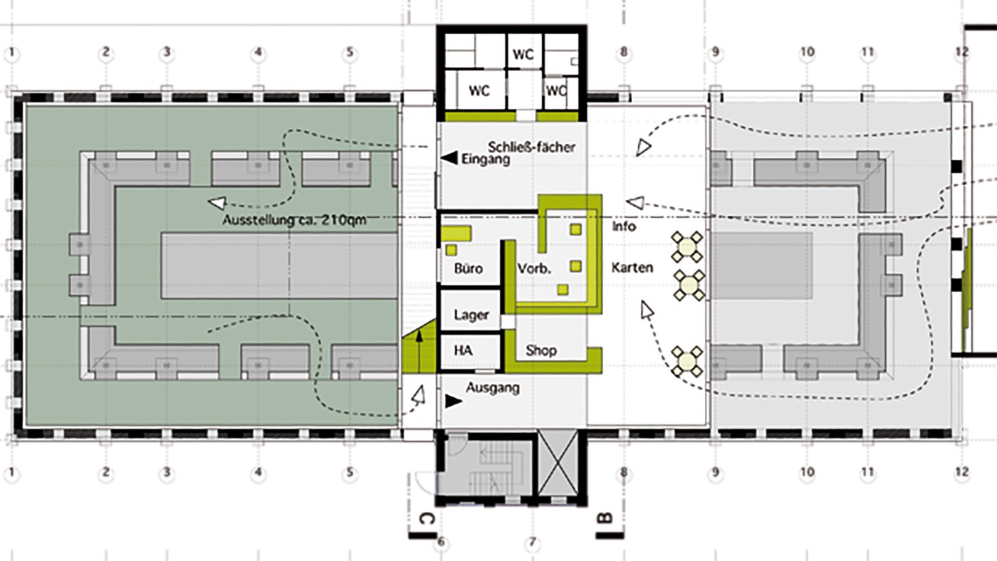
Das moderne Besucherzentrum fügt sich über alle drei Geschosse als "Haus im Haus" in die historische Bausubstanz ein, grenzt sich jedoch stilistisch und hermetisch vom unbeheizten Bestand klar ab.
Die ehemalige Ziegelei bleibt als schützende Hülle bestehen. Mittels eines architektonischen Schnitts durch alle Geschosse ist die historische Funktionsweise für die Besucher lesbar. Der Spalt ermöglicht es das Gebäude selbst für einen stratigraphischen Geologie-Bezug in den Ausstellungsaufbau zu integrieren. Ein neuer, nach außen sichtbarer Kern, dient der Besucherzirkulation sowie allen notwendigen Servicefunktionen. In einer korrespondieren Gestaltungssprache wird ein neuer Haupteingang an die Hauptfassade angefügt, und gewährt dem Besucher somit unmittelbaren Eintritt in die historische Substanz. Weitere Funktionen des Raumprogramms sind flexible Veranstaltungsräume und Museumsverwaltung, welche sich über die oberen Geschosse verteilen.
Projektdaten
Auftraggeber: IBA Fürst Pückler Land GmbH
Leistungen: Architektur, Innenausbau
Größe: NF 1900 qm (Bestand 595 qm, Neubau 1305 qm)
Leistungszeitraum: September 2007 - Projekt in Arbeit
Leistungen: Architektur, Innenausbau
Größe: NF 1900 qm (Bestand 595 qm, Neubau 1305 qm)
Leistungszeitraum: September 2007 - Projekt in Arbeit
Team
Wettbewerb & Leitung: Tom Duncan, Noel McCauley
Gestaltungsentwicklung: Charlotte von Uslar-Gleichen, Joar Nango
Gestaltungsassistenz: Eva Kloda
Kosten: Kerstin Albrecht
Gestaltungsentwicklung: Charlotte von Uslar-Gleichen, Joar Nango
Gestaltungsassistenz: Eva Kloda
Kosten: Kerstin Albrecht

